
在Delta市议会批准修建新的更大规模Winskill水上健身中心的初步设计方案仅两个月后,详细设计方案已经制定并开始接受公众咨询。
这一详细设计方案与之前的初步方案在建筑形态、布局及特征上高度一致,主要差异在于融合了具体的建筑设计特征和材料。
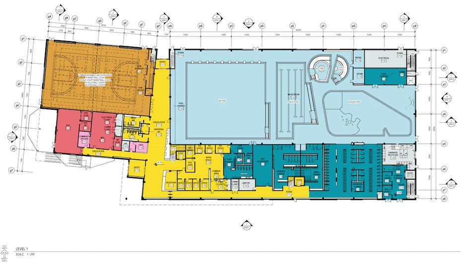
新建筑将位于Winskill公园的东北角,取代现有的公园北侧的开放草地,面向56街。
新公布的艺术效果图展示了建筑外立面的棋盘状面板图案,下部则使用了多种颜色的砖块,给行人视野下的部分增添了丰富的视觉效果。
设施的主入口将设在公园中心附近的新公共广场,从此广场可通往新建筑下层屋顶的大型景观户外公共空间。
室内设计将采用一些大规模木材材料。
整体来看,新设施的设计较为简洁和传统,符合社区和休闲中心的标准。项目的建筑设计公司为Dialog及Carscadden Stokes McDonald Architects。



根据之前批准的初步设计,新建的90,000平方英尺的双层设施将配备一个10条道、25米的游泳池,一个四条道的教学池,以及一个带懒人河和水滑梯的休闲池,此外还有温水池、冷水池、桑拿、健身房、体育馆、多功能房间及南海岸男孩女孩俱乐部的空间。
游泳池的总面积将达到14,000平方英尺,是现有设施南端泳池面积的两倍。此外,6000平方英尺的健身房也将是目前健身房面积的两倍。






建设完成后,现有于1977年建成的设施将被拆除,其占地面积将用于将表面停车场的容量从140个车位扩展到250至275个车位。
为了容纳新设施和扩展的停车场,Winskill公园将进行全面改造,最终将新增四个棒球场,而这比目前存在的设施多出一个棒球场。
在重新配置的准备工作中,位于公园西端的150棵树木已被移除,以腾出空间用于两个新棒球场的建造。根据市政府的说法,受影响区域内保留了400棵树木,并有31棵树木被移植。现在的计划是在公园内种植超过400棵新树。




该项目的预计成本约为1.3亿加元,其中1.2亿加元用于新设施及拆除现有设施,1000万加元用于Winskill公园的改造。市政府推进此项目是因现有设施老旧且系统日渐失效,同时Delta市快速增长的人口需求也在不断变化。
第二轮公众咨询所收集的反馈将用于最终确定设施设计。在线问卷将持续开放至2025年3月24日。
如果一切顺利,在详细设计获批后,施工有望于2025年中开始,并于2027年末完成并开放。
Delta市市长George V. Harvie在一份声明中表示:“居民的反馈在塑造新的水上健身中心初步设计中发挥了关键作用,我们期待着再次与公众交流以完善最终设计。”
“随着设计的最后阶段进入实施阶段,我们即将为这一激动人心的设施奠基,我鼓励大家积极参与分享意见,以便我们能够建造一座真正符合我们社区需求的设施。”