现在在亚马逊下单不仅可以收到吃的喝的用的,而且只需动动手指头刷卡几千块,亚马逊就可以把一套房子送到你面前,并且八小时就能盖好。
目前,美国亚马逊上有一款名为“AllwoodSolvalla”的花园小屋在售,售价为7250美元。这款小屋整栋都是由实木打造,只要两个成年人花费八个小时就可以组装完成,想把家安置在哪里由买家说了算!



小屋组装好之后约172平方英尺,被亚马逊称为 “绝佳的家用办公室或是客房”。但是这款小屋由于面积较小,里面没有设计厕所和浴室。不过只要你愿意再多花一点钱,就可以买到设施更加完善的迷你屋,比如下图这种,售价19900美元,就包含了厕所。



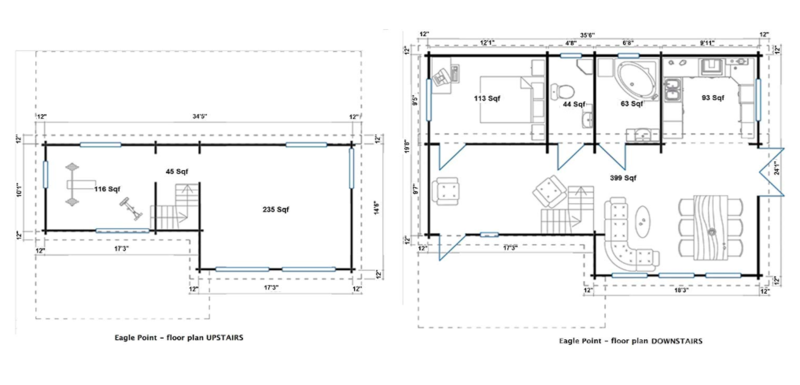
还有这种更高级的,售价46900美元,分上下两层,有完整的厕所、浴室和厨房,房间、门窗等都可以任意增加、减少或调整。



这款迷你屋是由生产商Allwood在2018年推出,当时他们声称争取在年底前卖出250套。
不过,目前任何一款迷你屋在亚马逊上的评价还少得可怜,可能真正买的人并不多。有很多人提出了“如何铺设水管”、“是否可以改变门的位置”等问题需要解决。
虽然目前这种迷你屋还并未普及,但至少给了我们一个只花几千到几万元就能拥有一个家的机会。或许在不久的将来,随着迷你屋模式的发展,我们在购房安家时又多了一种全新的选择。
版权归Vansky所有,转载请标注链接。