温哥华生意买卖 地产经纪 赵信德 Frank Chen 女神的衣橱 vanskywechat

列治文市中心 3房 3卫 1厅 1书房 2车位 大型公寓出租

(Vansky Copyright)
更新时间: 2026-02-14, 17:49
联系人 联系人: 朱先生
邮箱 邮箱   : kkm001@hotmail.com
微信 微信   : canwin002
电话 电话   : 5193003266

[来电请说Vansky上看到]

地址 地址   : 8288 Saba road  

260121210422_R3075181_5.jpg
260121210311_FloorPlan_revised.jpg

*C]_(o)p]yRigh.t.©1++]?9+99-?20)1)+).[.8van]+?s)ky?.c?o-+m

出租住宅
住宅类型:公寓;房间类型:中间楼层;
房间情况:3睡房;3浴室;1客厅;全功能厨房;1饭厅;
停车:车位;
设备设施:洗衣,干衣,一体炉具,烤箱,冰箱,微波炉,地板;
租金包含:水,煤,网;
出租方式:整租;
租客条件:无烟,无宠,正职,学生;
语言偏好:普通话,英语;
可用时间:2026-02-15;
租金或价格:3350左右;
 
详情描述

位于列治文市中心漂亮的Saba路一端,闹中取静。
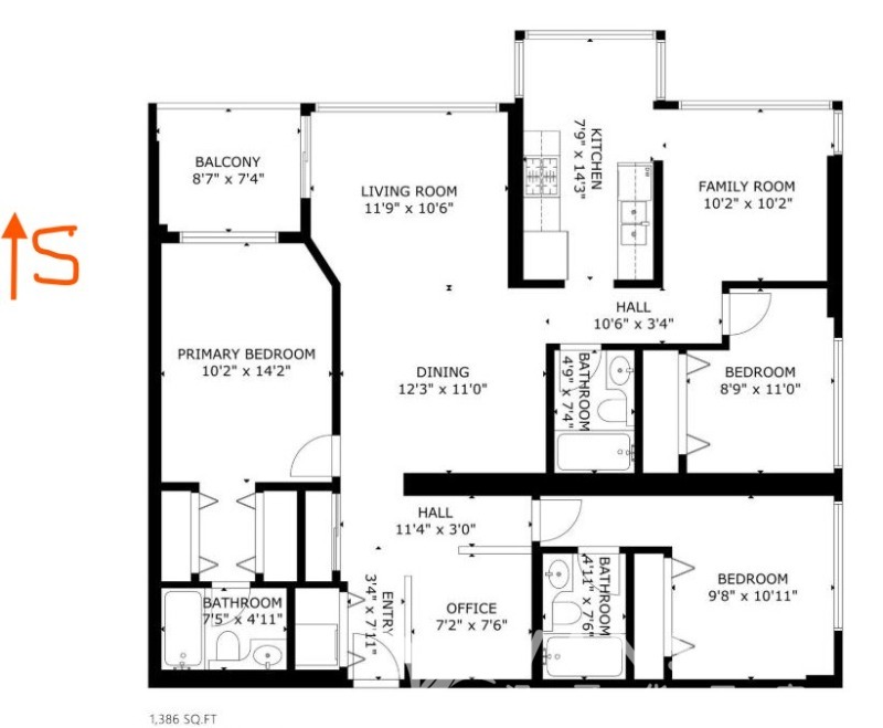
大楼中层的大型公寓,西南朝向,面积130平米。
含3卧 3卫 1厅 1den 1饭厅,功能齐全。
租金包含水,煤气,网络。

***包含2车位, 300米到天车站, 停车乘车皆方便***

***租客自带家具***

租住方式:可整租($3350),亦可合租(每间$1200左右)
租客要求:在职专业人员,或在读学生,无宠无烟,最低1年合同
起租时间:20260215
联系方式:朱先生,电话 5193003266,微信 canwin002


联系我时请说明是在Vansky上看到的,谢谢!

 

防骗:请勿在未见面看房核实身份下,网上支付押金。
用图片内的文字描述看管房子,宠物免租金,都有诈骗嫌疑

Vansky Copyright

分享到微信: 分享到微信

朱先生

5193003266

电话

safari_pop_logo
 
App 下载