温哥华生意买卖 地产经纪 赵信德 Frank Chen 女神的衣橱 vanskywechat

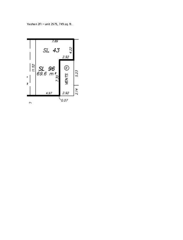
Yaohan 二樓749尺旺鋪出租 (樓下有大統華)

(Vansky Copyright)
更新时间: 2024-02-27, 13:36
联系人 联系人: Crystal
微信 微信   :
电话 电话   : 6042328635

[来电请说Vansky上看到]

地址 地址   :   

200827172139_yaohan-1.jpg
230613124046_yaohan2.jpg
230613124107_2575 floor plan with dimension.jpg

].+*C[[opyR-i(]][g+ht?©-1.99)9+-2--]?+018v?an+s+k*y.+co].m

即刻可租749尺旺鋪位於大家熟知的YAOHAN 商業區2樓。 此單位大小適中,月租$1498 (不含物业费), 歡迎垂詢。 

張女士 604-232-8635


联系我时请说明是在Vansky上看到的,谢谢!

 

Vansky Copyright

分享到微信: 分享到微信

Crystal

6042328635

电话

safari_pop_logo
 
App 下载